Landing Pad
A Historic Structure Updated for Next-Gen Commerce

Nestled in the canyons of Austin’s gleaming downtown is an amazing relic from another time. On the blocks stretching from Congress Avenue east to I-35, the Sixth Street Historic District contains the biggest cohesive collection of Victorian-era commercial buildings remaining in the city. Now undergoing a thoughtful revitalization that preserves its historical context—and hopefully the stories that accompany it—Sixth Street has lived many lives. Long before it was a draw for college students, barflies, and music lovers, and before the highway bifurcated downtown, Sixth Street was the entry to Austin from the east and a hub of business and enterprise driven by the city’s immigrant, Black, and Mexican American entrepreneurs. Its thriving mix of establishments—general goods shops, restaurants, barbers, tailors, doctors, dentists, notaries, a funeral home, and an informal economy of lenders and social services—catered to a community that was excluded from the city’s formal systems.
In 2019, Spectre Air Capital took a leap of faith and purchased the building at 701 East Sixth with plans to move its international headquarters to this neglected area in the heart of downtown Austin. Spectre’s office provides both a landing pad and welcome mat for international clients visiting Austin. Transforming a historically significant building into Class A office space aligned with the company’s business converting mid-life passenger planes to cargo transport around the globe.
Spectre hired Chioco Design to revive the limestone and brick building without compromising its historic character, a nod to the value of the street’s contributions to the city’s identity. While a renewed push to breathe new life into “Old Sixth” by Stream Realty Partners and Clayton Korte is now well underway, in 2019 that project had not yet taken hold.

PHOTO BY CHASE DANIEL
“The fact that we had a client that was willing to pull everything together and create a singular building for a singular purpose was interesting to us,” says Jamie Chioco, Assoc. AIA, principal and founder of Chioco Design. “The hope was that this part of Sixth Street comes back as something that’s different. I think that’s the point of old things—to bring them back to something that’s much more useful for current needs.”
Built in 1896, the building originally housed a feed store and wagon yard. The 700 block—where the street crossed Waller Creek and the flood-prone land was less expensive and less desirable to affluent whites—became the heart of the Mexican American community. In 1908, 19-year-old Ben Garza opened a meat market at 701 East Sixth. In 1910, a second floor was added to house overnight guests, and the building is believed to be the first in town to welcome Hispanic tenants. Now designated by the Texas Historical Commission as the Randerson-Lundell Building, it is the only freestanding building on East Sixth, according to the Austin Landmark Commission. Standing firm through Austin’s growth and evolution, its long life has seen a series of incarnations and owners, including former Austin mayor Will Wynn. Over time, its interiors were divvied up into disconnected businesses of varying types (in the 1980s, the basement even housed a hot tub nightclub). Through it all, the essential qualities of the building thankfully remained intact.
To say the building was taken down to its bones might be an understatement. The condition of the limestone walls—30 inches thick in some places—was not sufficient to support the new floor structure. Thus, the Chioco design team, led by Jamie Chioco and Michael Chaveriat, along with DCI Engineers created an internal steel frame within the walls, inserting a tactile modernity into the historic shell. The new frame is connected to the walls in places, but the walls no longer provide the primary support for the floors and roof. The seven-foot ceiling in the subterranean space was excavated to add three feet of height and create a functional basement, and a rooftop deck was added on top of the third floor. These vertical expansions turned the building into four stories of usable space.


PHOTO BY CHASE DANIEL

PHOTO BY CHASE DANIEL

The interior design is a combination of muscular structural and architectural steel elements combined with sleek white oak flooring and paneling, glass partitions, and added windows. An open central stair is the organizing sculptural element that draws natural light from the rooftop all the way down to the basement. A strong vertical spine, its floating stairs ascend skyward, giving expression to the company’s aerial operations. The limestone walls are left uncovered as a constant reminder of the building’s place and time, allowing, in Chioco’s words, the history to come through.
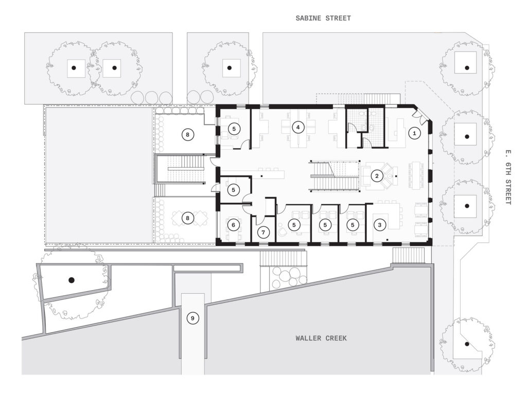
The structural steel framework was carefully crafted to support the added roof deck without interfering with the open interiors, and special attention was given to craftsmanship to align with the quality construction of the original building. The frame creates a grid-based organization to the interiors that gives the open space a comfortable geometry. New openings are used as opportunities to express the walls’ thickness, adding an enduring heft to the experience of the interiors. On the ground floor, sightlines from glass-partitioned offices along the east wall and open common areas on the west wall move through the open stairwell, whose treads are reclaimed longleaf pine. The program mixes private offices, conference rooms, and shared workspaces for collaboration, while also offering opportunities for spontaneous interaction and room to grow for the 15-person team.

PHOTO BY CHASE DANIEL

PHOTO BY CHASE DANIEL
The break room’s counter/bar and café seating along the Sixth Street facade engage with street activity and soften any perception of corporate stiffness; the renovated original wood doors are operable, to create a seamless indoor-outdoor experience when desired. Sleek model airplanes, large-scale photography, and other artistic elements, including the tail wing of a plane displayed on a prominent wall, add a creative energy that encourages use beyond nine-to-five. The office frequently hosts company events, with an eye toward joining in citywide happenings like SXSW and Formula 1.
The basement, now a working office space, receives natural light from new windows. Walls underpinned by board-formed concrete combine with remnants of plaster on the old limestone wall to add an elemental textural variety to the exposed historic walls. Outside, an intimate courtyard provides a counterpoint to the expansive roof deck and its 360-degree bird’s-eye views atop the building. Here, an exterior stair leads to the street level and then extends up to the roof, mirroring the interior stairwell. The exterior access to the deck makes it possible to host events entirely separate from the office interiors, if desired.
In a way, the project is the first piece of the puzzle in redeveloping “Old Sixth” in preparation for a more pedestrian- and family-friendly daytime experience. Chioco says it felt strange to be working on a luxury building in the area when the project began. Now that Clayton Korte is completing the renovation and stabilization of 29 Victorian-era buildings in the area, “it doesn’t feel strange,” he says. As more retail and restaurants move in, the spirit of one of Austin’s most beloved and enduring thoroughfares will be revived and a new chapter in its history well written.
Also from this issue
Supporting Ecological Evolution in the Anthropocene
A Home Designed for the Decades
An Argument for Creative Reuse Over Preservation
Expanding a 1930s Bungalow for a Modern Family
Evolving the Profession for a Changing World
A Houston Garage Remade as a Culinary Destination
Adaptive Reuse at Pullman Market
Building With Fruit Waste Matter
Oblique Experiments
Igor Siddiqui
Applied Research & Design, 2025
The Type V City: Codifying Material Inequity in Urban America
Jeana Ripple
University of Texas Press, 2025
These new LED lighting fixtures for spaces from tabletops to stairwells offer flexible illumination for residential and commercial spaces.