Edge Condition
A Home Designed for the Decades


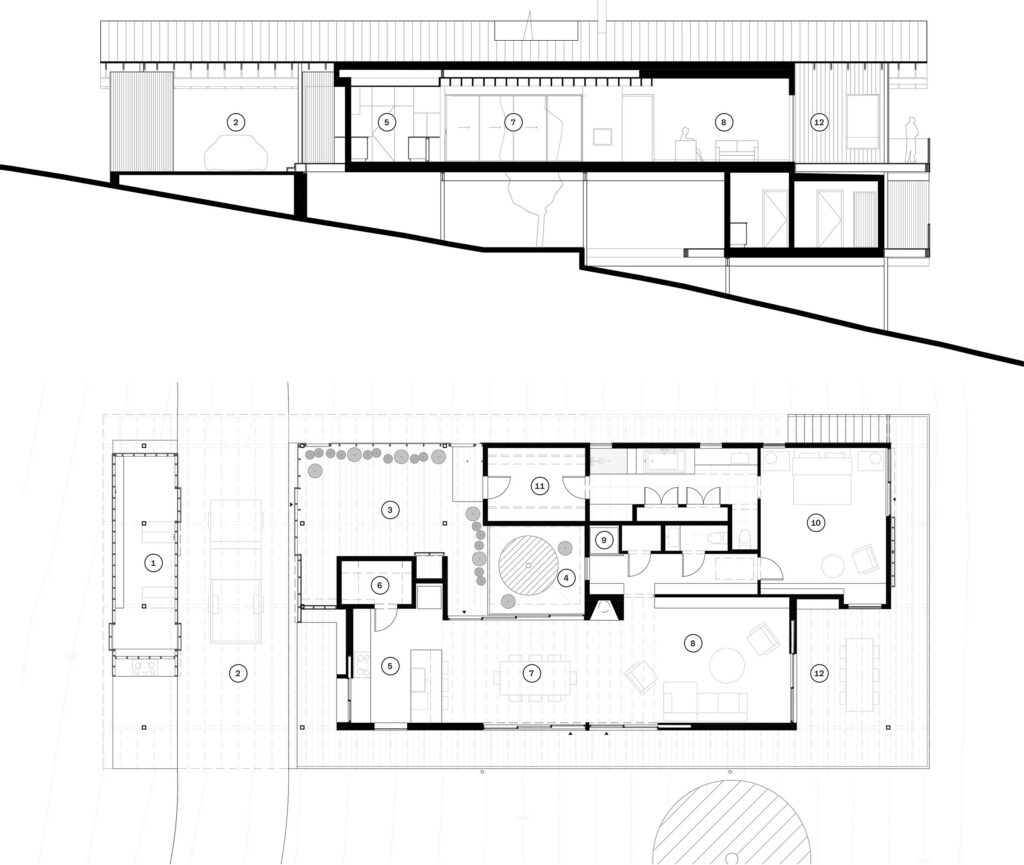
High up, a house by Low Design Office (LowDO) perches atop a rocky outcrop overlooking what is ostensibly a wolf-inhabited creek. One of LowDO’s recent residential design-build projects, the house was completed in spring 2024 and sits near Lake Buchanan, close to Burnet, about 60 miles northwest of Austin. Getting there requires a drive that is both windy and winding. Cliff faces, studded with cacti, line the roads that climb the hills overlooking the lake and surrounding valleys. The neighborhood is made up of large, sloped lots—some complete with helipads, or so I am told. The home’s site, approximately 22 acres, occupies the crest of a hill that just barely peeks over Lake Buchanan. The house itself, however, does not sit squarely on top of the hill; instead, it juts outward from it, floating into the valley beyond.
From the exterior, the home is stark and simple in appearance, echoing the unforgiving, arid landscape that surrounds it. The land is bare and rough, with scraggly oak trees twisting and crawling through the dry ground. This is not to say that either lacks beauty; there is a sincere serenity in the restrained nature of both the building and its setting. Although the building’s material palette gives it an industrial character, it sits delicately at the edge of the hill, barely touching down—seemingly just enough to comply with gravity. Perforated steel articulates the exterior, marking the outdoor living spaces while providing shelter from sun, rain, and wind.
Made of steel and yellow pine, built on a budget, and designed to be self-sufficient in a harsh environment, the home carries a distinct industrial character—industrial in the sense that economy and efficiency informed every aspect of the design. The house is reminiscent of a mining shaft attached to the side of a mountain or hill in Appalachia or the Rockies; it seems to have landed on the site, almost like a ship entering a harbor. The concept sketch of the home encapsulates this idea as well. The premise is simple: a home that minimally impacts the surrounding environment while taking full advantage of it.

DRAWING BY LOW DESIGN OFFICE



PHOTO COURTESY LOW DESIGN OFFICE
To meet that aspiration, the home harnesses the natural elements available to it. It is equipped with a rainwater collection system that holds approximately 30,000 gallons. Although located in a dry environment, the roof is designed to capture as much water as possible: It is gently sloped, with gutter systems that feed the cistern. For every inch of rain, the house can collect roughly 2,500 gallons of water.
The expansive roof was also designed to support future photovoltaic panels, to capitalize on the region’s ample sun and clear skies. In addition, the home is designed to harness the site’s prevailing winds for ventilation. Openings throughout the house, along with sliding glass doors, allow the interior to open almost entirely to the outdoors. A central void acts as a passive wind catcher, while the generous openings amplify the cooling effect it provides. The void cuts through the entirety of the building, touching down on a patch of gravel. Beneath the daylight pouring down the shaft rests a simple shrine with a stone crucifix planted in the ground, sitting about ten feet from a heavily used four-wheeler—making it one of the most Texan holy spaces I have seen to date.
In discussing their philosophy, LowDO emphasized the importance of passive cooling—not only for this project but as a necessary strategy for designing in Texas more broadly. Designing homes to be airtight may provide year-round comfort through HVAC-conditioned spaces, but such approaches can also lead to increased energy consumption and excessive moisture retention. Sometimes, one might say, less is more.
Nearly half of the house is unconditioned porch space. Still, the cover provided by the porches along with the natural breezes that move through the site make the home seem as though it would be quite pleasant even in a Texas summer. This generous use of outdoor space, coupled with LowDO’s economy of materials and design-build approach, resulted in an exceptionally affordable project. Considering LowDO’s track record, however, this is not surprising. As part of their commitment to innovation, the firm tends to leverage specific off-the-shelf materials and mass market products, as well as particular standard details and common techniques of construction, to create equitable and impactful architecture.

PHOTO COURTESY LOW DESIGN OFFICE

PHOTO COURTESY LOW DESIGN OFFICE

PHOTO COURTESY LOW DESIGN OFFICE

In addition to LowDO’s signature use of clean, simple details, the firm is known for its penchant for iteration and modularity. Although complete in its current state, the home was designed with room to grow through a thoughtful structural strategy. The steel structure that cradles the house floats just enough above the cliffside to allow for future rooms and additional conditioned space.
From a macro perspective, the house reads almost like a small campus suspended above the cliff, with generous outdoor and porch spaces extending it well beyond the interior living areas. Natural light, expansive views of the valley, and a restrained material palette draw attention to the experience of the space itself, with the building paradoxically feeling secondary to its surroundings. Designed to be low-impact and integrated into the site, the house becomes part of the cliff rather than an object placed upon it.
Building on previous projects and remaining true to LowDO’s body of work, the Wolf Creek Ranch residence is an elegant expression of everyday materials and construction. The design responds thoughtfully to its environment while taking the lightest possible touch in its state of repose. An impressive example of design-build in Texas’s Hill Country, Wolf Creek demonstrates that it is often better to build to the hill rather than on it, leaving room for both the house and its landscape to grow and shift over time.
Cameron Klepac, Assoc. AIA, holds degrees in civil engineering and architecture and serves on the TxA Publications Committee. They would like to become an architect one day (preferably sooner than later).
Also from this issue
Supporting Ecological Evolution in the Anthropocene
An Argument for Creative Reuse Over Preservation
A Historic Structure Updated for Next-Gen Commerce
Expanding a 1930s Bungalow for a Modern Family
Evolving the Profession for a Changing World
A Houston Garage Remade as a Culinary Destination
Adaptive Reuse at Pullman Market
Building With Fruit Waste Matter
Oblique Experiments
Igor Siddiqui
Applied Research & Design, 2025
The Type V City: Codifying Material Inequity in Urban America
Jeana Ripple
University of Texas Press, 2025
These new LED lighting fixtures for spaces from tabletops to stairwells offer flexible illumination for residential and commercial spaces.
A beautifully written article about a beautifully built home. It makes me think more about how architecture and nature should be like peanut butter and jelly, always good together.