Cootie Catcher
Expanding a 1930s Bungalow for a Modern Family

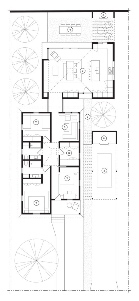
Just one block over from San Antonio’s trendy Pine Street in Dignowity Hill sits a recently renovated 1930s pattern book home fondly called the Cootie Catcher. The name refers to a folded fortune teller, the paper equivalent of a child’s Magic 8 Ball, and is an apt description of the expansion of the historic residence. The 650-sf addition mimics its playful origami namesake, discreetly tucked behind the original home.
Dignowity Hill is a popular locale among architects, designers, and young families due to its historic character, proximity to the downtown, and intimate neighborhood scale. As a living archive of San Antonio’s growth, the eclectic neighborhood is valued as “a living archive of San Antonio’s growth—honoring its past while embracing its future,” according to the Dignowity Hill Neighborhood Association’s website. The Cootie Catcher holds up here, respecting the historic fabric of the neighborhood while accommodating a growing family’s needs with a sense of humor and grace.
The clients, Hannah and Pryce Ancona, sought a home that would enhance their laid-back, kid-centric lifestyle and support their passions for cooking and gardening. Architect Cotton Estes, AIA, understood that the house needed to do more with less and be easy to live in.


The Cootie Catcher inspires immediate curiosity upon approach. The original front porch now serves as an ensuite, plant-filled patio adjacent to the primary bedroom. The new entry sequence is framed by the historic east facade of the original home and a new carport. An elegant shade structure and limestone path welcome the owners and visitors alike through the lot, where the light-filled spaces unfold.
The glazed entry leads with a glimpse of the awe-inspiring skylight in the main living area. Its unexpected pyramid-like oculus blankets the interiors with warmth soaked up by white oak millwork. Stepping inside seems like an embrace. In fact, it was this surreal comfort that led the owners to choose this very spot for a home birth under the picture-framed sky. It is here in the cocoon-like room where daily life occurs. Spaces flow back to the street from the main kitchen, dining, and living area to the more private spaces in the original structure. A transparent bridge acts as threshold, connecting the addition to the older portion of the home, which has been renovated to accommodate three bedrooms, two baths, and a smaller family room. Marking a clear divide between new and old, the bridge also provides a direct connection to the outdoors, a theme carried throughout the home.
Pryce confides that the calm of the space has positively influenced his lifestyle. “I have always been someone who wants to go out, plan the next thing,” he says. “But since this was built, I actually find a lot of comfort in being at home.” Hannah enjoys how the home is well suited for family life and the fact that play can happen anywhere, remarking on how the kids quickly adopted the bridge as the best spot in the house for block building. “It just felt nice,” she says, “and now the blocks stay there.”
The feeling of spaciousness provided by the home was intentional in the design. “The property feels way bigger because you walk all the way back to come inside, and then walk all the way back up front to the private spaces,” explains Pryce. He observes that their three children, ages seven, five, and one, “flow in and out.” The ever-present connection to the outdoors is tangible. Hannah contrasts life in the original bungalow as “a little dark” compared with their experience in the addition, the new space receiving so much light that “we can still feel connected without the kids begging to leave the house.” Estes wittingly posits projects that utilize outdoor space as her example of “living larger.”






I was welcomed to the home on a sunny afternoon in early December. The Anconas were opening boxes of ornaments and had arranged a fir tree in the northwest corner of the space, backlit by a stunning sunset. Sitting in the addition, I wondered how this young couple landed in a space that could be both a setting for fine art and the stuff of greeting cards.
Hannah explains: “I grew up in San Antonio, so I know and love San Antonio very much. When I came back, I wanted a different part of the city; I didn’t want to have my exact childhood. We heard whispers of this neighborhood. We knew there were some young families here, so we just went for it.” After committing to downtown, the young couple hit a crossroads. “A few years in, we felt like we needed more space,” says Hannah. “We looked and looked and realized, we really love this neighborhood.”
The family’s predicament is not unique to millennials’ post-COVID experience. The generation’s desire for urban life and proximity to amenities is increasingly outweighed by a need for more affordable housing and space as their families grow. Many research institutes, like Harvard University’s Joint Center for Housing Studies, point to the trend of millennials migrating to larger suburban homes outside city centers.
An anomaly to this trend, Hannah and Pryce took an alternate road. With a total budget of $415,000, the couple reached out to Estes on a friend’s recommendation. Pryce expressed his original skepticism about working with an architect. “When we reached out to Cotton, our attitude was somewhat like, if you don’t email us back, it won’t hurt our feelings,” he says. “We know we have a 900-sf home in a sort-of rough neighborhood.”
A few blocks down the road, Estes’s studio exceeded Hannah and Pryce’s expectations for the property with a commitment to the couple’s needs and aspirations for their home, regardless of budget. Their original assumptions about the property were dispelled through the programming stage. Pryce likens the process to his work in consulting; when interfacing with clients, he often takes three steps back to ask larger questions. Hannah appreciated that Estes listened carefully and that her questions were similarly big and broad.
The Cootie Catcher’s pointed, hipped roof amid the landscape of early 20th-century bungalows is both contextual and set apart. This unique gem tells the one-of-a-kind story of Hannah and Pryce. They created a home that can serve as a model for ambitious young couples aiming to steward their property investments instead of hedging their bets in the burbs. In a real estate landscape where it is easy to conflate an abundance of square footage with quality of life, Hannah notes, “I know that money can’t buy happiness, but maybe good architecture can.”
Noel Kuwabara is a registered architect in Texas and serves as faculty at San Antonio College. She holds a Bachelor of Architecture from Syracuse University and a Master of Science in Urban Design from the University of Texas at Austin.
Also from this issue
Supporting Ecological Evolution in the Anthropocene
A Home Designed for the Decades
An Argument for Creative Reuse Over Preservation
A Historic Structure Updated for Next-Gen Commerce
Evolving the Profession for a Changing World
A Houston Garage Remade as a Culinary Destination
Adaptive Reuse at Pullman Market
Building With Fruit Waste Matter
Oblique Experiments
Igor Siddiqui
Applied Research & Design, 2025
The Type V City: Codifying Material Inequity in Urban America
Jeana Ripple
University of Texas Press, 2025
These new LED lighting fixtures for spaces from tabletops to stairwells offer flexible illumination for residential and commercial spaces.