As the Crow Flies
The first phase of UT Dallas’s new arts complex revealed

Amid a campus long characterized by its austere modernist core, the University of Texas at Dallas continues to evolve through a series of architectural and landscape interventions. The Edith and Peter O’Donnell Jr. Athenaeum represents the most ambitious of these efforts—a three-phase convergence of art, performance, and scholarship envisioned as both a cultural nexus and a physical extension of Peter Walker’s 2050 master plan. Championed by the late Rick Brettell—professor of art and aesthetic studies, founding director of the Edith O’Donnell Institute of Art History, and instrumental in helping the university acquire the Trammell and Margaret Crow Collection of Asian Art—the Athenaeum transforms the southern edge of campus into a new point of orientation, redefining UTD’s relationship to its landscape, its community, and its future. Phase one of the project includes the Crow Museum of Asian Art, which opened to the public in September 2024. Described by staff as a “sanctuary” for both art and visitors, the new museum offers a rare stillness amid the university’s evolving landscape—a place of retreat and reflection as much as display.
Following a global design interview and selection process, Los Angeles–based Morphosis was selected as the architect for all three phases of the project. “From the beginning, Rick Brettell was a fierce ambassador. His vision was on paper early, and the conversations that followed are what we have come to see today,” says Amy Lewis Hofland, the senior director of the Crow Museum. “His commitment to the students was to create a world-class platform for art, music, and culture. Rigor and quality were essential, and that led to Morphosis’s selection.”
The firm approached the project with pragmatic clarity—seeking to situate its ambitious program within the broader campus experience and fulfill Brettell’s call for connection. “From the outset, we focused on connecting the Athenaeum to the larger campus through open space—using landscape as the connective tissue,” explains Morphosis partner Arne Emerson. “By extending the existing north–south pedestrian spine into the heart of the site, the master plan creates a new cultural campus where art, performance, and learning unfold within a series of interconnected plazas and gardens.”
Those early discussions prompted a rethinking of scope. “The original brief called for a parking garage and a single cultural building,” Emerson recalls. “Early conversations with the university and multiple stakeholder groups revealed that the project’s potential was larger—and not yet fully defined. We proposed a six-month visioning process to clarify the program and establish a framework for the future.” The following six months did build consensus among stakeholders, though not without challenges—including the COVID-19 pandemic and the loss of two key figures: Brettell himself and Dr. Hobson Wildenthal, the university’s chief academic officer. “Rick’s vision for an Athenaeum devoted to art, music, and the exchange of ideas—paired with Wildenthal’s deep understanding of UTD’s academic and cultural ambitions—gave the project its foundation,” says Emerson. “Their passing early in the process brought the entire team together in a shared purpose: to continue their legacy through thoughtful dialogue and collaboration. The result is a long-term vision and master plan that establishes a true cultural campus for the arts at UTD.”
The master plan begins with the architecture—a unified mass encompassing all three phases. The consistent height of the massing aligns with the scale of the existing campus. Running north to south, a series of atria and double-height spaces form a bent campus axis through the eastern third of the site, varying in size to accommodate flexible programming and gathering. Simple east–west paths extend the logic of Walker’s plan southward, serving dual purposes for service and fire access. In section, the program is visually lifted to a single level, creating a transparent base that opens to surrounding plazas and landscape. A future garage will be embedded into the site’s east edge, softened by a planned linear greenway that will bridge the Athenaeum and its surroundings.

The approach toward the University of Texas at Dallas along the southern parkway is a long, meandering path where a gradual pace builds anticipation for arrival on campus. Peter Walker’s 2050 plan for UTD envisioned this approach as passing through a reclaimed forest, where the parkway feels more like a meandering creek bed flowing into a raised formal green and traffic circle. This point of orientation offers an expansive view of a rapidly evolving campus and acts as a key transition into the formal axis that reorders the historical cross-section of the university.
Hallmark to Walker’s plan is a series of interconnected microclimate site features arranged along a reflecting pool. As the campus landscape has matured, Walker’s focus on walkability and comfort has aged well. The university’s original “concrete canyon” of architecture was the condition that first inspired the plan, and it remains the most compelling—where disparate parts converge to create opportunities for interaction, pause, and presence. The buildings constructed along the central axis—most opening after the master plan’s completion—are now grounded in the landscape, each supporting the composition by extending outdoor spaces and emphasizing interior-exterior connections, albeit often only toward the frontage.
Moments of contrast, such as those at the southern arrival point and on the north side of the master plan, reveal the energy that emerges when spaces challenge a strict reverence for order. The Athenaeum—by virtue of its programmatic convergence, expressive form, and placement near the untouched portion of the campus’s “reclaimed forest”—is among the most compelling and complex sites on campus to interpret through new architecture.
Equally intricate are the programmatic relationships that define the Athenaeum, born from the coordination of diverse organizations, some new to campus, and the effort to create dialogue among them across a phased development. The vision for the project came from Brettell, who described the future complex during the early stages of planning in 2020 as “a meeting place where the activities of research, teaching, making, demonstration, exhibiting, and performing take place. It will engage community members, scientists, engineers, researchers, artists, designers, and humanists to interact, discuss and collaborate on the creation of new knowledge that spans disciplines.”
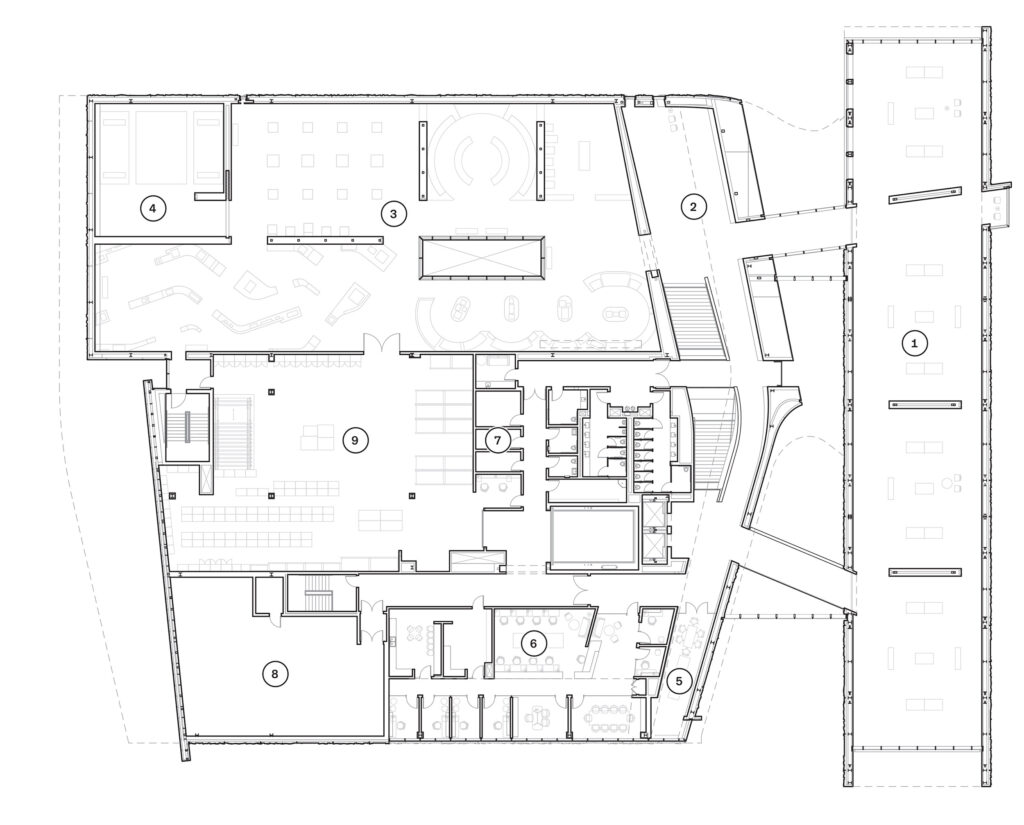
Each of the three phases encompasses roughly 50,000–60,000 sf across two levels. The first houses the Crow Museum of Asian Art, reuniting its archive and expanding its exhibition capacity. Pop-up collaborations with other institutions now enliven the galleries. The second phase will introduce a music teaching building and a 680-seat concert hall as part of the Harry W. Bass Jr. School of Arts, Humanities & Technology, while the third envisions an art museum.



At the time of publishing, a year has passed since the opening of the Crow Museum of Asian Art. The museum continues its tradition of engagement, hosting live painting sessions in the north courtyard and atrium while exhibitions rotate in the flex gallery and permanent collection. “The first year was about experiments, in the spirit of what the Crow is known for,” explains Amy Hofland. “The building is very flexible and can cater to a number of different interventions. The Wellness Lab is an important piece, where the building can be experienced through meditation or exercise amongst the collection.” The emerging second-phase concert hall is ever-present in the background, providing a tangible sense of continuity with the master plan. To the east, however, work has yet to begin, and a surface parking lot still dominates the site.
Early reviews judged the building largely on the first phase, critiquing its stoic aesthetic. Amid the retail sprawl surrounding the campus, some compared it to the blank facade of a department store. A year later, that stoicism remains in part, but the question lingers whether architecture is to blame. With Walker’s reclaimed-forest concept in mind, the missing element in the composition is landscape. The design reflects the restraint seen elsewhere on campus, where the built form seems hesitant to touch the formal landscape. However, the condition here is the opposite. Had the site design been as gestural and integrated as the Athenaeum concept suggests, the story might be different. There is hope that future additions—particularly the north–south greenbelt—will restore that opportunity.
The clarity of the form is now unmistakable as the neighboring second phase takes shape. Budget constraints tempered the degree of expression possible, resulting in an architecture more restrained than expected from Morphosis, though still defined by its strong conceptual gestures. Continuity appears in the striated precast cladding of the upper volume, its clean white tone nodding subtly to the campus vernacular. The algorithmically varied panels introduce depth while maintaining cost efficiency. Sharp cuts in the upper volume highlight the Crow Collection’s focus on craft, creating a unique dynamic within the first-phase building.
At the heart of the project is the Rick Brettell Reading Room, which holds his archives and serves as a symbolic anchor. Positioned “front and center,” as Emerson describes, it faces the campus approach—daylit from above by a skylight and glowing at night to honor Brettell’s legacy. Directly adjacent is the atrium, framed by a secondary gallery on the exterior, its precast canopy visually drawing visitors inside.



The carved atrium delivers the kind of dynamic gesture we’ve come to expect from Morphosis—visually arresting, at times disorienting, yet consistently captivating. Bridges and balconies heighten anticipation for the gallery spaces above. “The atrium is a threshold moment to acknowledge that you are in some place special, essential to setting up the journey to contemplate in the space and amongst the work,” says Hofland. “It is a great metaphor for how we live.”
The Crow Collection’s art conservation lab occupies the ground-floor core, flanked by studios, classrooms, and a museum shop. Ascending the stairs, visitors can choose between the permanent galleries or the flex space within the project’s shallower bar. For those seeking a straightforward sequence, the layered circulation can be challenging.


The Crow Collection is the most intriguing space, unfolding with color cues visible from around the corner. Inside, Morphosis’s exhibition design brings coherence to the collection, presenting “rooms within rooms” that mirror the stories of the works themselves. The largest gallery, devoted to pottery, forms a grid of glass monoliths scaled to their contents, allowing visitors to chart their own path among thematic parallels. The jade gallery offers an intimate, concave space that narrows attention to the finest details, while larger works are displayed in expressive rooms that pull the viewer inward through subtle spatial gestures. Notably, many galleries admit daylight, creating an openness rarely experienced in museum settings. The rotating gallery bar underscores the building’s flexibility, enabling dialogue between the permanent collection and guest exhibitions. Heading back to the bridge and down the staircase, the second phase comes into view, providing a sense of what’s to come.
Like the greater UTD campus, the Edith and Peter O’Donnell Jr. Athenaeum remains in flux—a living expression of balance between rigor and refuge. As the Crow Museum continues to evolve, it stands as a haven for art, learning, and contemplation. The architecture’s ability to foster reflection amid academic bustle suggests that the Athenaeum has already achieved what it set out to be: a place where art and community meet in dialogue.
Also from this issue
Housing Policy and the Quest for Shelter
A new model for neonatal care
Austin’s Stealth House defies convention.
The making of El Paso’s Temple Mount Sinai
A bustling community center for Northwest Austin
Exploring new possibilities for green burial
A new home for a West Texas church
Empathic Design: Perspectives on Creating Inclusive Spaces
Elgin Cleckley, NOMA
Island Press, 2024
Creating the Regenerative School
Alan Ford, FAIA, Kate Mraw, and Besty del Monte, FAIA
Oro Editions, 2024
Absolutely entrancing! One of the most extraordinary art and cultural experiences in North Texas. A multicultural and generational addition to the university.